Titelbild Projekt wbw Kinder- und Familienhaus
Realisierungswettbewerb
wbw Kinder- und Familienhaus
Ebersberg
Ort: Ebersberg
Zeitraum: 2013 bis 2014
Beteiligte: terra.nova Landschaftsarchitekten, München


Preise: 2. Preis

Thema:
Städtebau
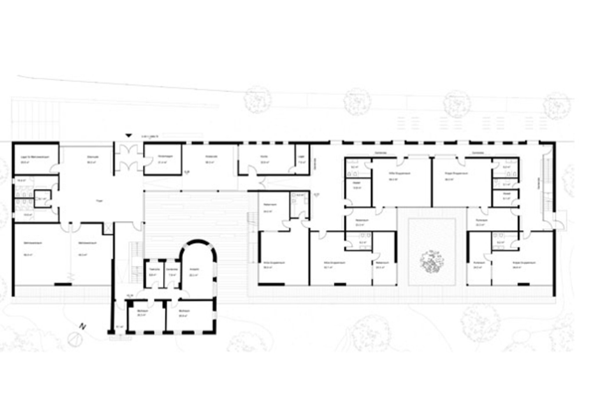
Das neue Kinder- und Familienhaus wird als ein zusammenhängender, lang gestreckter Baukörper entlang der Pfarrer-Bauer-Straße angeordnet. Mit einer Länge von 76,5 m nimmt er städtebaulich Bezug auf die großen Setzungen der Schulgebäude in der Floßmann- und Baldestraße.

Entwurfskonzept
Der Gebäuderiegel zeigt sich nach Norden, Osten und Westen geschlossen und bildet eine dreiseitige Klammer, die das Kinder- und Familienhaus schützend umgibt. Die südlichen Fassaden öffnen sich unter Ausbildung von zwei Höfen großzügig zum Freibereich.
Mit dem westlichen Hof umgreift der Neubau behutsam das historische Klösterl und stellt damit die Apsis der ehemaligen Kapelle in den Mittelpunkt des Innenhofs (Kapellenhof). Von der Ulrichstraße aus gesehen bleibt das historische Gebäude der quartiersbildprägende Gebäudeteil oberhalb der baumbestandenen Böschungskante. Von der Pfarrer- Bauer-Straße aus steht der Neubau im Vordergrund. Bereits am Eingang und durch die verglaste Fassade des Elterncafés erkennt man die Nordseite des Klösterls mit der Kapellenapsis. Sie bildet den zentralen Orientierungspunkt für die Haupterschließungsbereiche und das Foyer.

Grundriss und Erschließung:
Der Grundriss mit dem von der Süd- zur Nordfassade wechselnden Flur teilt das Gebäude in zwei Bereiche.
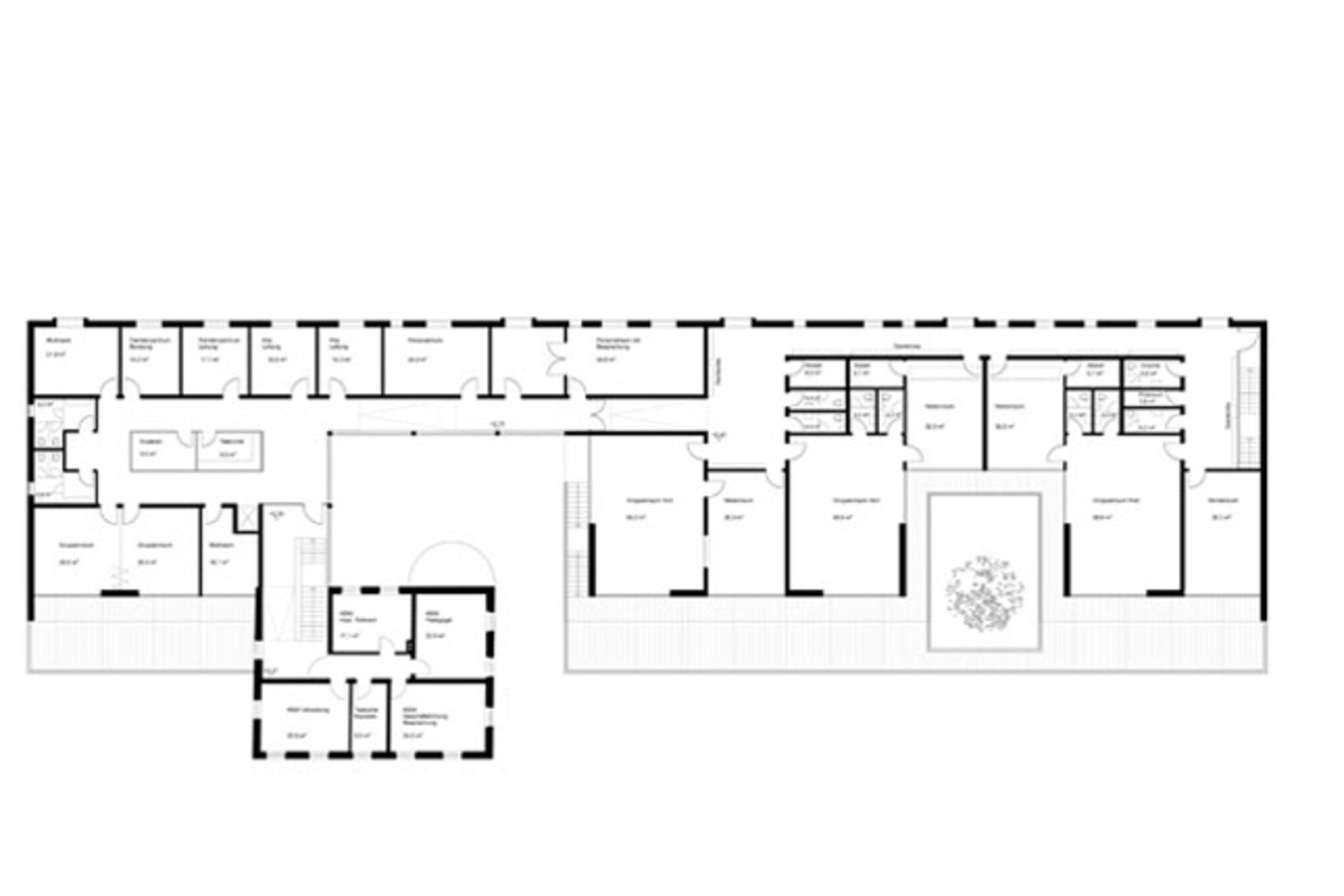
Im Westen befindet sich das Familienzentrum mit Mehrzweck- und Mulitfunktionsräumen sowie dem Andachtsraum im Erdgeschoss. Im Obergeschoss befinden sich Personalräume, Verwaltungsbüros des Familienzentrums, der Kita, die Räume des Kreisbildungswerks sowie weitere Gruppen- und Multifunktionsräume.
Östlich des Kapellenhofs liegen im Erdgeschoss Kindergarten und Kinderkrippe und getrennt erreichbar im Obergeschoss, der Kinderhort. Für den Kitabereich bildet der zweite Innenhof (Baumhof) das Zentrum.
Als Bindeglied zwischen Familienzentrum und Kita fungiert das Elterncafé im Foyer mit Blickbezug zum öffentlichen Vorplatz und zu den Eingängen der Kita. Durch seine Lage kann es auch für Veranstaltungen des Familienzentrums genutzt werden.
Das Kindercafé, etwas abgeschirmt und mit Blick in den ruhigen Kapellenhof, bildet den Auftakt zu Kindergarten und Krippe. Der Kapellenhof dient als Freibereich für beide Cafés und das Foyer.
Alle Gebäudeteile sind barrierefrei erreichbar. Die neue Haupttreppe ersetzt die nicht mehr originale Bestandstreppe im Klösterl und bindet so Alt und Neu eng aneinander.

Fassaden, Konstruktion und Baustoff:
Konstruktion und Baustoff
Das Kinder- und Familienhaus ist als Holzbau auf einem Stahlbeton-Kellergeschoss konzipiert. Die Außenwände werden in Holzrahmenbauweise erstellt, die Innenwände sind als Schotten mit massiven Brettstapelwänden ausgebildet. Die Geschossdecken bestehen aus Holz-Beton-Verbund-Decken. Die Hybridkonstruktion nutzt die Vorteile des Betons wie Aufnahme hoher Druckkräfte, Schalldämmung, Temperaturspeicherung und kombiniert diese mit den Vorteilen der Brettsperrholzplatte wie Aufnahme hoher Zugkräfte, geringeres Gewicht, schallabsorbierende oberflächenfertige Untersicht, nachhaltiger Werkstoff.
Die Südfassade staffelt sich im Obergeschoss zurück und bildet eine großzügige Dachterrasse für den Hort aus. Das charakteristische Vordach verläuft entlang der gesamten Südfassade und zieht sich bis in die Höfe. Großzügige, raumhohe Schiebefenster sorgen für einen großen solaren Energieeintrag bei tiefstehender Wintersonne, im Sommer wird durch das schützendes Vordach ein Aufheizen des Gebäudes vermieden.
Die Außenhaut des Gebäudes besteht aus einer senkrechten Holzschalung aus vorvergrauter Weißtanne. Sie bildet einen spannenden Kontrast zur Putzfassade des Klösterls und unterstreicht die unterschiedlichen Gebäudegenerationen.
Im Inneren des Gebäudes stehen den Sichtoberflächen der Brettsperrholzdecken und Brettstapelwände die einfarbigen, flächigen Linoleumböden gegenüber.

Freianlagen
Im Norden bildet eine leicht abgesenkte, hofartige Platz/hofsituation den Eingangsbereich des neuen Kinder- und Familienhauses. Die befestigte Fläche zwischen Verkehrsweg und Gebäude bietet ausreichend Platz für den ‚Hol- und Bringablauf’, sowie genügend Stellplätze für Fahrräder mit Kinderanhänger, Cityroller und Transporträder.
Als Ergänzung zu den Spielterrassen lagert sich im Süden eine organisch geformte, große Spiellandschaft an. Ein verzweigtes Wegenetz mit Aufweitungen und Aussichtsplattformen bietet innerhalb der Fläche Raum für altersgerechte Bewegungsspielelemente, während sich seitlich ruhigere Aufenthaltsbereiche mit Spielhäusern anlagern. Eingebettet in eine topographische Landschaft aus Pflanzbändern mit locker überstellten Bäumen ergibt sich ein harmonisches Bild.
Für die öffentliche Spielfläche bietet sich der Bereich südlich des Familienzentrums mit Zugang vom Fußweg an.

Projekt Bild #4
Projekt Bild #5
Projekt Bild #6
Projekt Bild #7
Projekt Bild #8
Projekt Bild #9