Mitarbeiterhaus
Aying
Aying
Auftraggeber: Brauereigasthof Aying Franz Inselkammer KG
Ort: Aying
Status: in Planung
Zeitraum: 2024 bis 2025
Ort: Aying
Status: in Planung
Zeitraum: 2024 bis 2025
Thema:
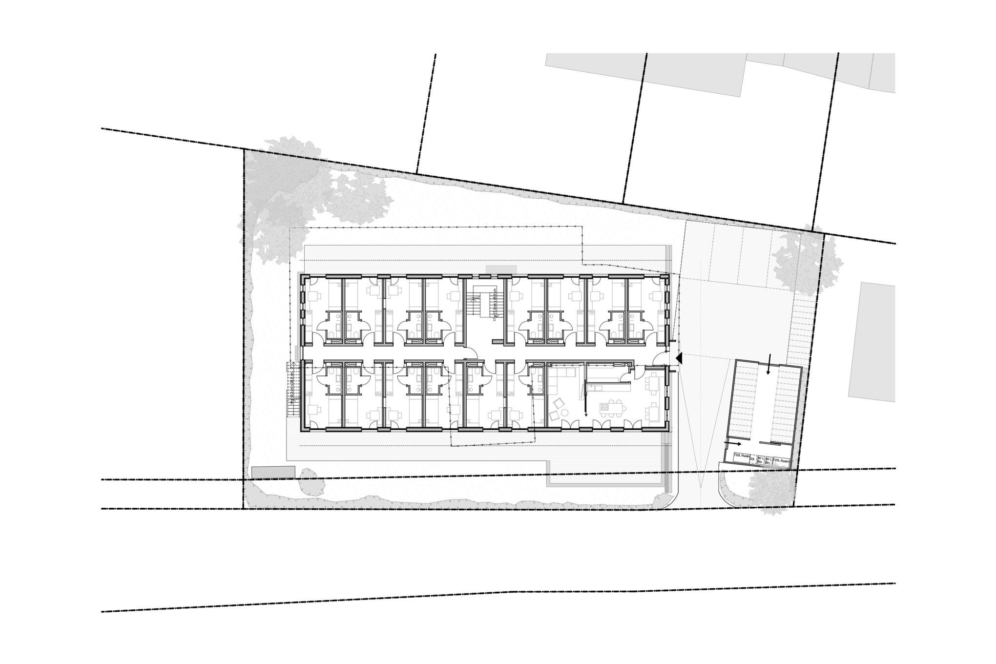
Für den Brauereigasthof in Aying wird ein Mitarbeiterhaus errichtet. Ziel ist es möglichst viele Appartments für Mitarbeitende in dem Entwurf unterzubringen. Jeder Bewohner soll sein eigenes "kleines Reich", mit eigener Küche und eigenem Bad bekommen. Als klassisches Mitterflur-Haus organisiert, fädeln sich die Appartments mit den privaten Freibereichen entlang des zentralen Flurs zu beiden Seiten auf.
Die "Mitarbeiter-Stube" im Erdgeschoss dient als Gemeinschaftsraum an der Süd-Ost-Ecke direkt am Eingang. Hier kann gemeinsam gekocht und gegessen werden.
Für den Brauereigasthof in Aying wird ein Mitarbeiterhaus errichtet. Ziel ist es möglichst viele Appartments für Mitarbeitende in dem Entwurf unterzubringen. Jeder Bewohner soll sein eigenes "kleines Reich", mit eigener Küche und eigenem Bad bekommen. Als klassisches Mitterflur-Haus organisiert, fädeln sich die Appartments mit den privaten Freibereichen entlang des zentralen Flurs zu beiden Seiten auf.
Die "Mitarbeiter-Stube" im Erdgeschoss dient als Gemeinschaftsraum an der Süd-Ost-Ecke direkt am Eingang. Hier kann gemeinsam gekocht und gegessen werden.