Titelbild Projekt Haus V
Neubau eines Einfamilienhauses aus Holz in Passivhausstandard
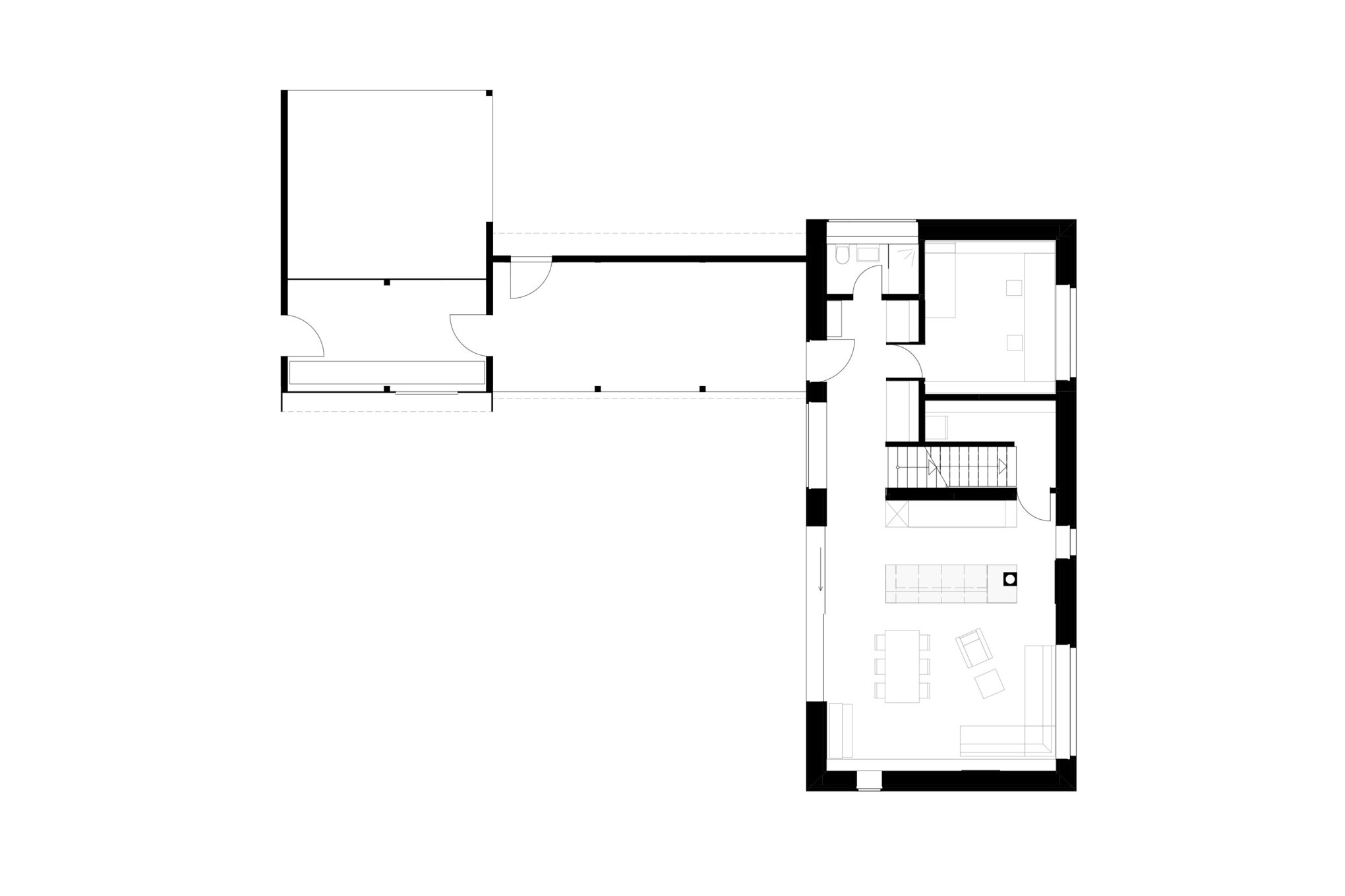
Haus V
Oberpframmern
Ort: Oberpframmern
Zeitraum: 2018 bis 2019

Projekt Bild #4
Projekt Bild #5
Projekt Bild #6
Projekt Bild #7
Projekt Bild #8
Projekt Bild #9